OKAZJA CENOWA! gotowy lokal - 181m2 - Wilanów

Lokal użytkowy na wynajem
9 100,00 PLN , Pow. 181 m2
Drukuj ofertę
Drukuj ofertę
Typ nieruchomości:
Komercyjny
Powierzchnia:
181 m2
Typ transakcji:
wynajem
Liczba pokoi:
4
Lokalizacja:
Warszawa Wilanów , Prymasa Augusta Hlonda
Rok budowy:
2010
Piętro:
0 na 4
Numer oferty:
PN155579
Cena za m2:
50,28 PLN
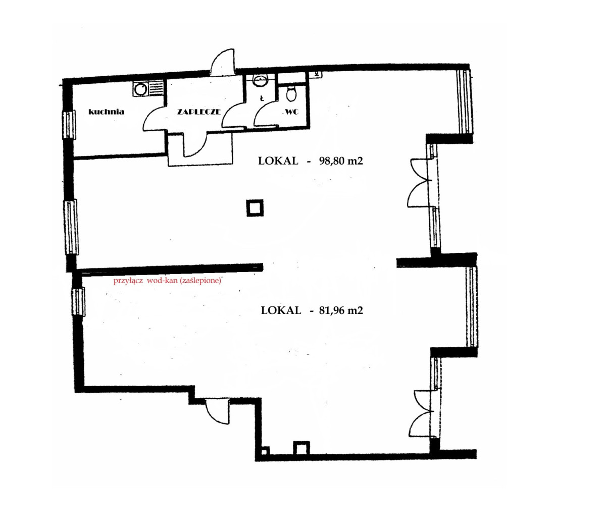
Parterowy LOKAL UŻYTKOWY o pow. 181 m2 w Miasteczku Wilanów - przy ul. Hllonda. Lokal wykończony (stan do odświeżenia) posiada duże witryny na całej długości dwóch połączonych sąsiednich lokali. Oprócz dużej sali głównej w skład lokalu wchodzi urządzone zaplecze z pomieszczeniami socjalnymi: kuchnia, łazienka, WC - rzut w załączeniu.
Lokal posiada dwa wejścia od frontu i dwa od strony zaplecza, wyposażony w instalację wentylacyjną, klimatyzacyjną, alarmową oraz wewnętrzny monitoring, wysokość ponad 3m.
Wzdłuż ulicy przed lokalem znajdują się ogólnodostępne miejsca parkingowe. Dotychczas w lokalu była prowadzona działalność handlowa.
Możliwość łatwego dostosowania lokalu pod inne działalności.
Realny czas najmu od 2-5 lat, z możliwością wykupu w perspektywie kilku lat.
Warunki najmu: czynsz - 50 zł m2/m-c, miesięczna opłata eksploatacyjna do Wspólnoty + prąd, woda - ok. 4500 zł PLN/ m-c, kaucja jednomiesięczna.
Zainteresowanych zapraszamy na prezentację oraz po dodatkowe informacje.
Nieprawidłowy adres E-mail