Przestronne, dwupoziomowe mieszkanie przy metrze

Mieszkanie na sprzedaż
1 500 000,00 PLN , Pow. 109,59 m2
Drukuj ofertę
Drukuj ofertę
Typ nieruchomości:
Mieszkanie
Powierzchnia:
109,59 m2
Typ transakcji:
sprzedaż
Liczba pokoi:
4
Lokalizacja:
Warszawa Wola Młynów , Rabsztyńska
Rok budowy:
1953
Piętro:
4 na 4
Numer oferty:
PN405169
Cena za m2:
13 687,38 PLN
Oferujemy piękne, jasne mieszkanie o powierzchni 109,59 m², położone w nadbudowie kamienicy
z lat 50 (rok nadbudowy: 2013) przy ul. Rabsztyńskiej. Mieszkanie znajduje się w spokojnej i dobrze skomunikowanej okolicy.

Lokalizacja
  • Warszawa - Wola (Młynów)
  • 250 m do stacji metra Młynów
  • W pobliżu liczne sklepy, restauracje, punkty usługowe, szkoły, przedszkole
  • Tereny zielone w zasięgu spaceru: Park Moczydło i Park im. Edwarda Szymańskiego
  • Dogodna komunikacja: metro, tramwaje, autobusy
  • Szybki dojazd do nowego centrum biznesowego przy Rondzie Daszyńskiego

Układ mieszkania

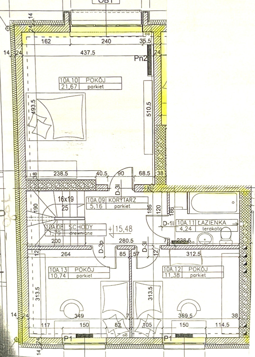
Mieszkanie zajmuje ostatnie dwa piętra (4 i 5) kamienicy i składa się z 4 pokoi i przestronnej jadalni, co zapewnia komfort zarówno dla rodziny, jak i osób pracujących z domu. Dzięki ekspozycji na północny zachód i południowy wschód, wnętrze jest jasne i przyjemnie doświetlone przez cały dzień. Wysokość pomieszczeń 2,7 m dodatkowo wzmacnia poczucie przestronności.
Dwupoziomowy układ mieszkania pozwala na wyraźne oddzielenie strefy dziennej na dolnym poziomie, od prywatnej części sypialnianej na górze.

Poziom I
  • Przestronny salon z dużymi oknami od strony południowej, z wygodną sofą, meblościanką i stołem
  • Jadalnia (może pełnić funkcję pokoju dziennego)
  • Jasna, w pełni wyposażona kuchnia z oknem (w cenie pozostają: zmywarka, kuchenka gazowa, piekarnik elektryczny)
  • Łazienka z kabiną prysznicową
  • Przedpokój wyposażony w szafę wnękową
  • Drewniane schody prowadzące na poziom drugi (możliwość zabudowy sporej przestrzeni pod schodami)

Poziom II

  • Trzy sypialnie: dwie mniejsze (okna na północny zachód) oraz duża sypialnia z wyjściem na balkon francuski (150 cm × 50              cm) od strony południowo-wschodniej (widok na zieleń i dachy domów)
  • W każdym pokoju przestronne szafy
  • Łazienka z wanną, pralką i piecem gazowym z zasobnikiem

Dodatkowe informacje
  • Mieszkanie w bardzo dobrym stanie, gotowe do wprowadzenia
  • Ogrzewanie i ciepła woda z pieca gazowego, co pozwala na kontrolę kosztów
  • Niski czynsz administracyjny, ok. 650 zł
  • Możliwość korzystania z ograniczonej strefy parkowania dla mieszkańców (zezwolenie ZDM)

To wyjątkowa oferta dla osób ceniących przestrzeń, funkcjonalny układ i doskonałą lokalizację w sercu Woli.

W budynku nie ma windy




 

Nieprawidłowy adres E-mail