3 pokoje, przy metrze, Bródno ul. Wysockiego

Mieszkanie na sprzedaż
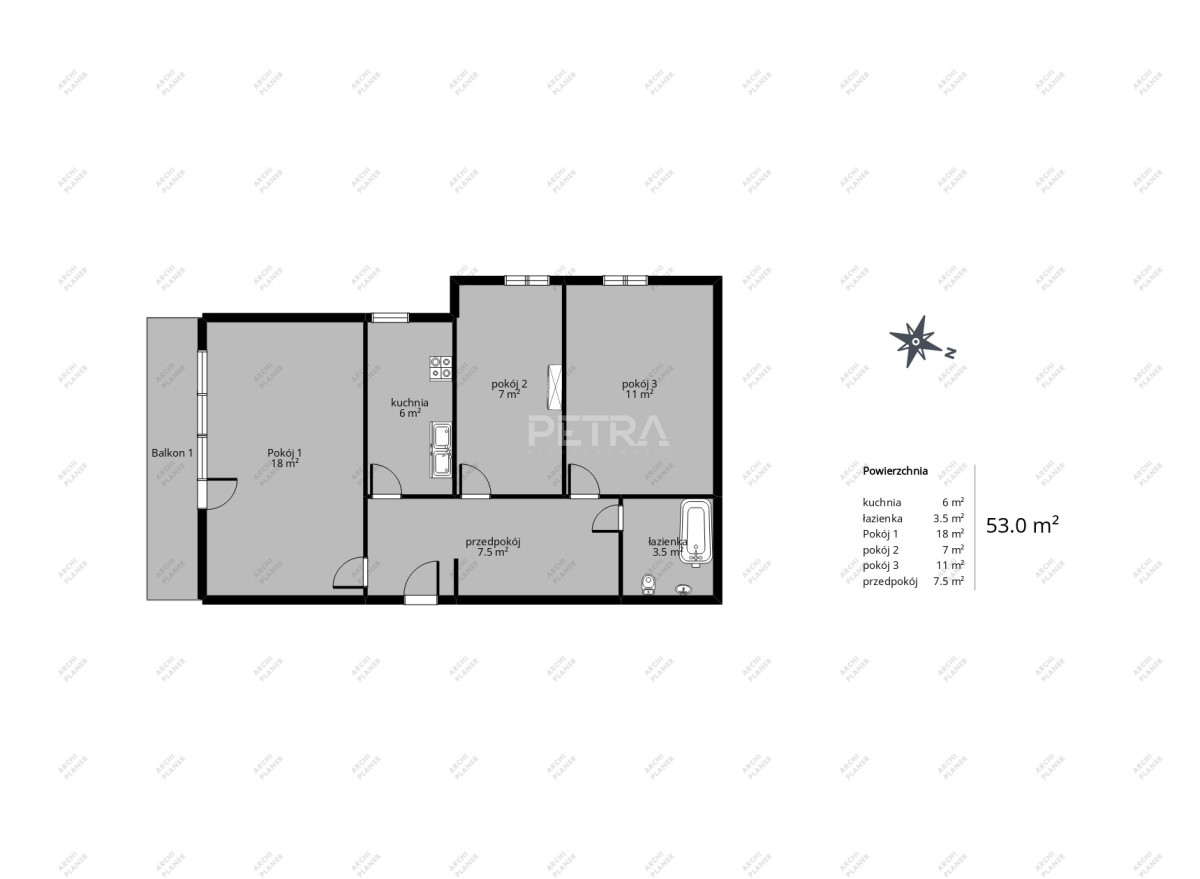
620 000,00 PLN , Pow. 53 m2
Drukuj ofertę
Drukuj ofertę
Typ nieruchomości:
Mieszkanie
Powierzchnia:
53 m2
Typ transakcji:
sprzedaż
Liczba pokoi:
3
Lokalizacja:
Warszawa Targówek Bródno , Piotra Wysockiego
Rok budowy:
1974
Piętro:
1 na 10
Numer oferty:
PN928038
Cena za m2:
11 698,11 PLN
Do sprzedania 3-pokojowe, rozkładowe mieszkanie o powierzchni 53 m2 usytuowane na 1 piętrze w doskonałej lokalizacji.
Mieszkanie rozkładowe do generalnego remontu, tylko okna (PCV) są po wymianie. 
W jego skład wchodzi: oddzielna widna kuchnia (6m), trzy niezależne pokoje (18+7+11m), łazienka z WC (3,5m), przedpokój (7,5m) i balkon (4m), ukierunkowane na płd i zach.
Do mieszkania przynależy piwnica oraz dodatkowy schowek przy wejściu.
Mieszkanie własnościowe z KW bez żadnych obciążeń, grunty uregulowane.
Idealny punkt komunikacyjny: stacja metra Bródno 600m, linia tramwajowa-Poborzańska 400m, liczne przystanki autobusowe - bliskość trasy S8.
Rozwinięta infrastruktura usługowo-handlowa, w okolicy Biedronka, Lidl, bazarek, Galeria Renova, szkoła podstawowa w ulicy, blisko - przedszkola, żłobki i szpital.
Zainteresowanych zapraszam na prezentację i dodatkowe informacje, posiadamy klucze, oferta na wyłączność.
Nieprawidłowy adres E-mail